EOP - CK- 05 Electric Order Picker
Električni uređaj pogodan za sve vrste skladišnog komisioniranja robe i upravljanje zalihama. Uređaj je pouzda, siguran u radu i visoko upravljiv. Dizajniran da poveća produktivnost i smanji troškove rada u skladištima, maloprodaji i distributivnim centrima.
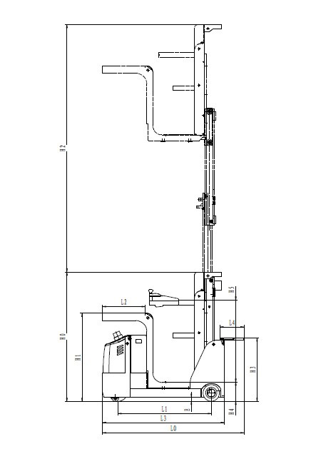
Tehničke karakteristike:

Dizajn:
CK- 05 ELECTRIC ORDER PICKER je atraktivnog dizajna, prvenstveno usmjeren na dugotrajnost u radu i učinkovitost.
| Performanse: |
| • AC pogonski motor, brz u odgovoru na komande, točne kontrole i izvrsna |
| energetske karakteristike |
| • AC Controller |
| • Hidraulika i jarbol: osiguravaju stabilnost opterećenja tijekom dizanja i |
| spuštanja, što daje stabilnost korpi |
| • Duplex ili tripleks jarboli |
| • Zaštita prilikom dizanja i spuštanja u pokretu |
| • Kočnice: kočenje elektromotorom prilikom usporavanja |

|